Google tag

Trang chủ»Nội thất»Khác»Quán ăn Anh Nam

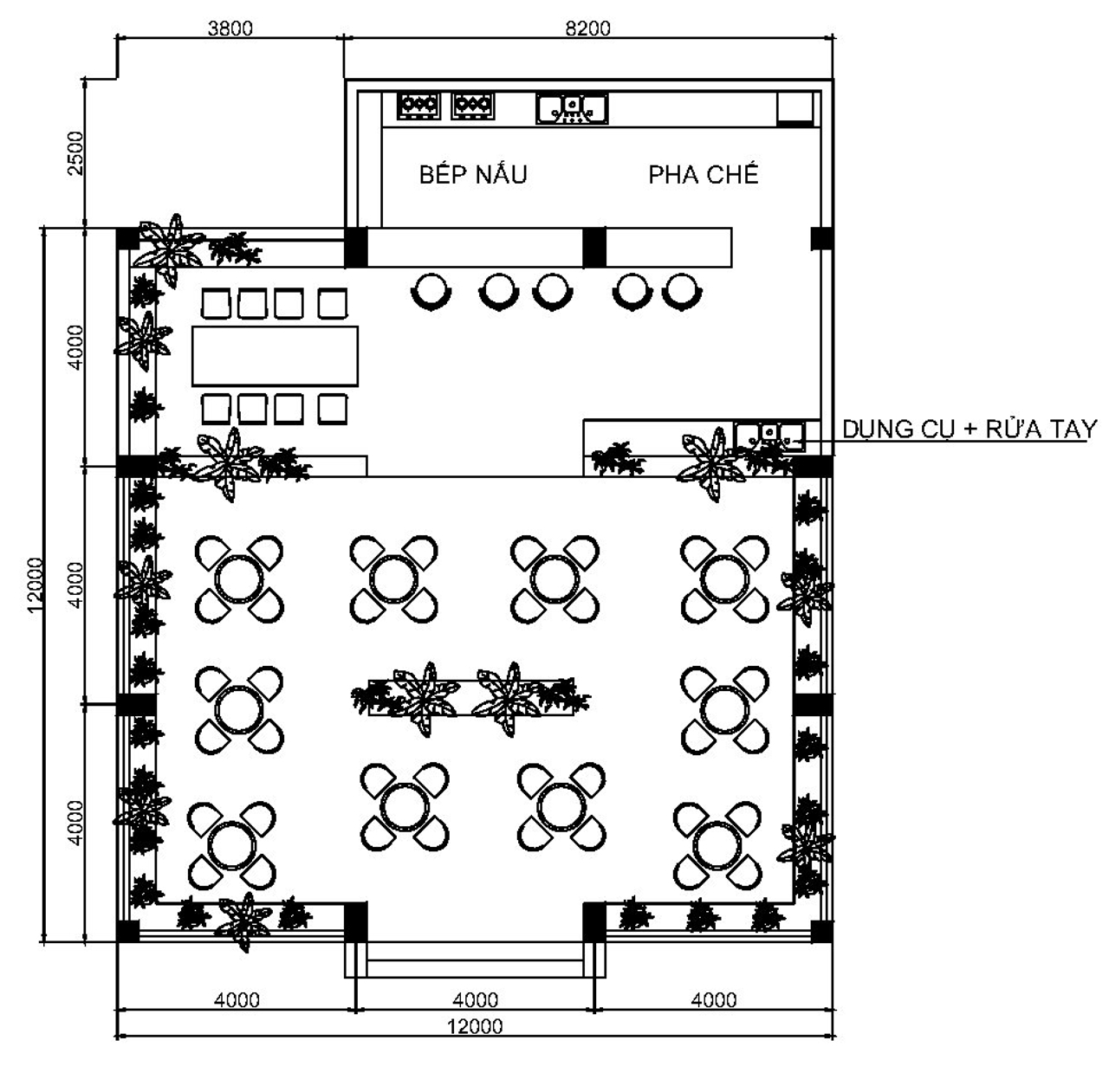
Quán ăn Anh Nam

Liên hệ

Công ty TNHH Xây Dựng Và Thương Mại Tường Khởi Phong

Văn phòng: 12 Trường Trinh, TT.Trảng Bom, Huyện Trảng Bom, Tỉnh Đồng Nai
Trụ sở chính: 34 đường 23, Tân Bình, Xã Bình Minh, Huyện Trảng Bom, Tỉnh Đồng Nai.
Điện thoại: +84 909 537 248

Bản đồ