Google tag

Trang chủ»Kiến trúc»Bar-Coffee»Quán Cafe anh Hậu

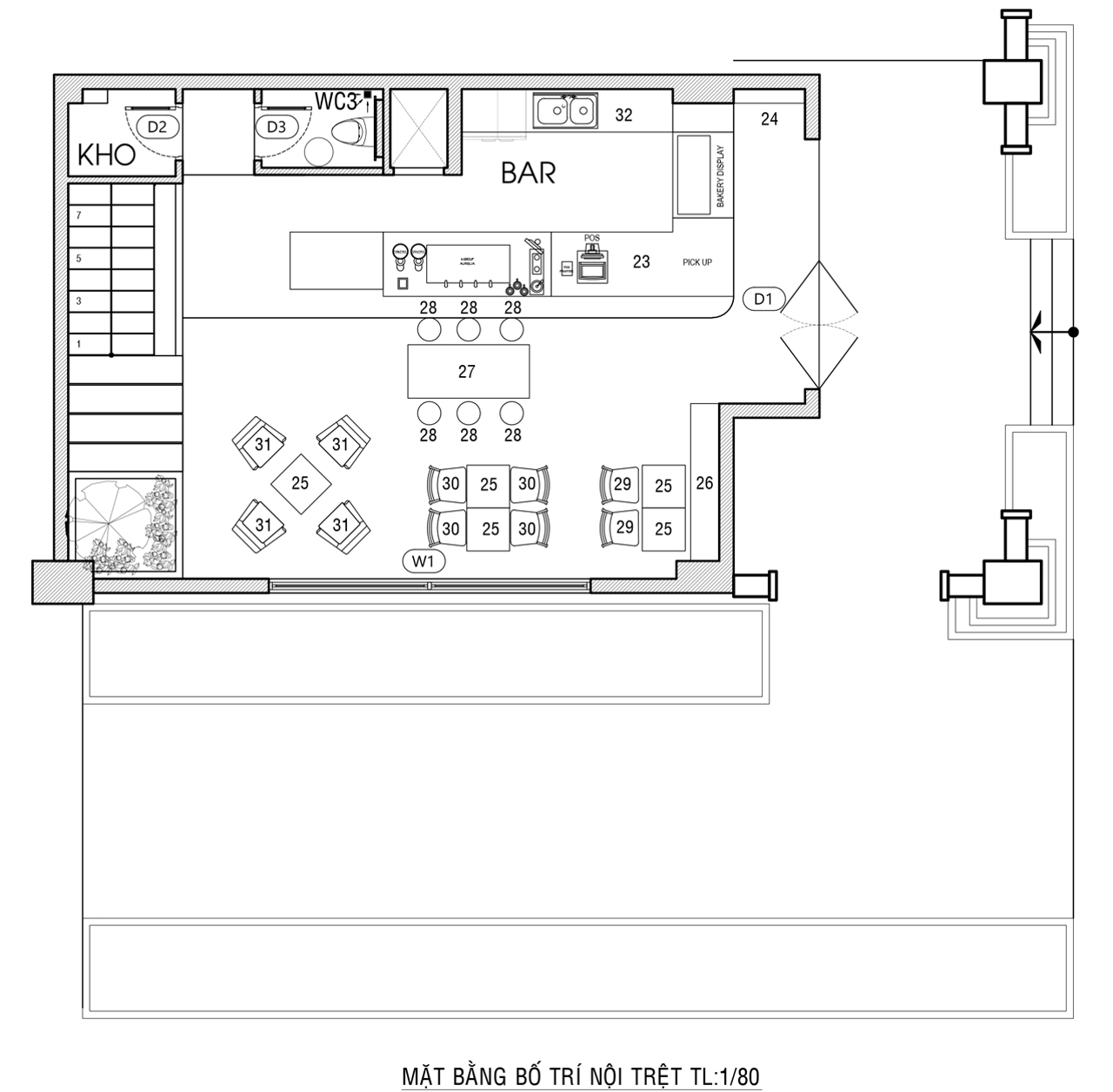
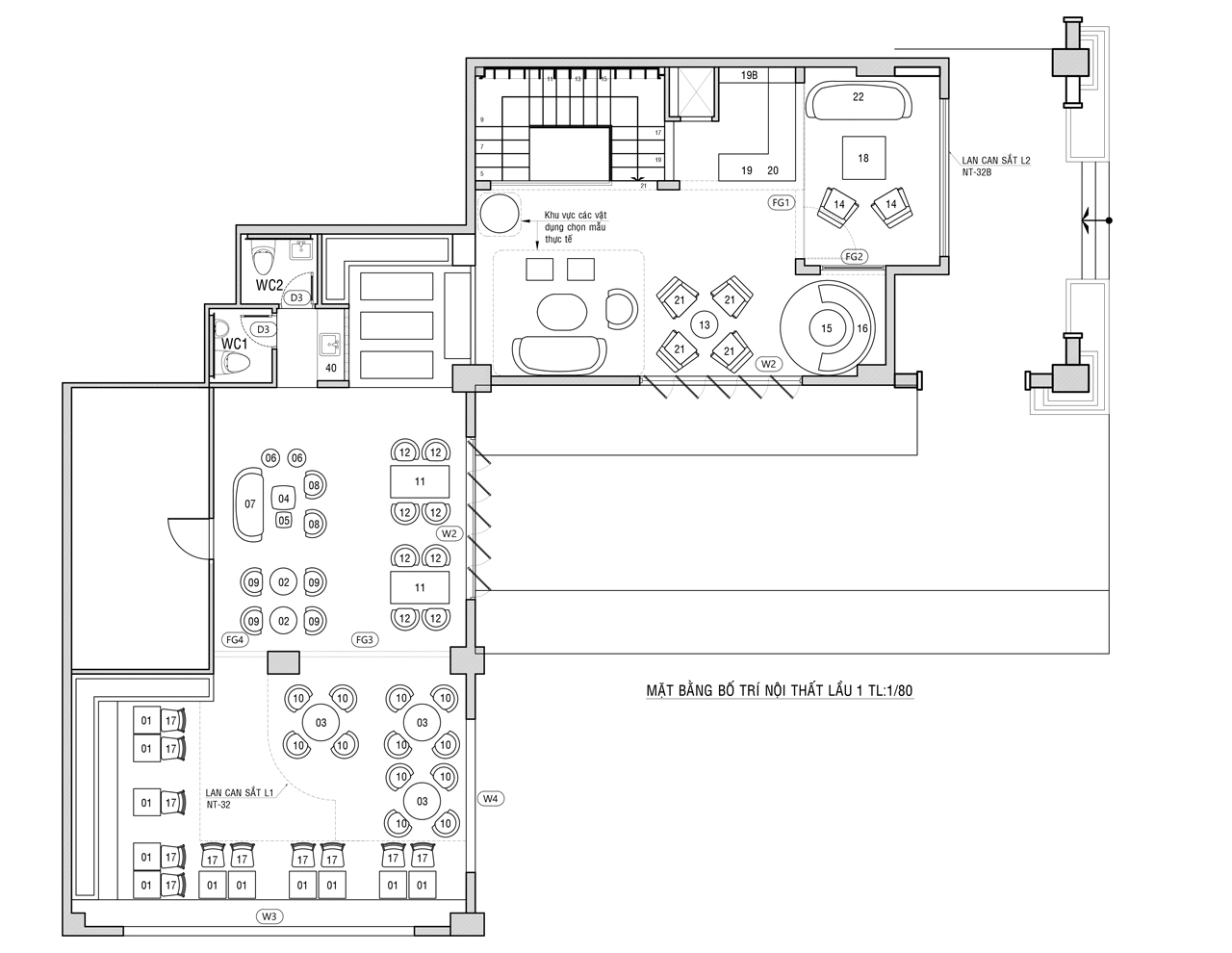
Quán Cafe anh Hậu

  • Mô tả:

    Chủ đầu tư: Anh Hậu

    Địa điểm: Q.Bình Thạnh, TP. HCM  

Liên hệ

Công ty TNHH Xây Dựng Và Thương Mại Tường Khởi Phong

Văn phòng: 12 Trường Trinh, TT.Trảng Bom, Huyện Trảng Bom, Tỉnh Đồng Nai
Trụ sở chính: 34 đường 23, Tân Bình, Xã Bình Minh, Huyện Trảng Bom, Tỉnh Đồng Nai.
Điện thoại: +84 909 537 248

Bản đồ